zur Feldbahn-Übersicht

Die Kipploren des Zementwerkes Wunstorf


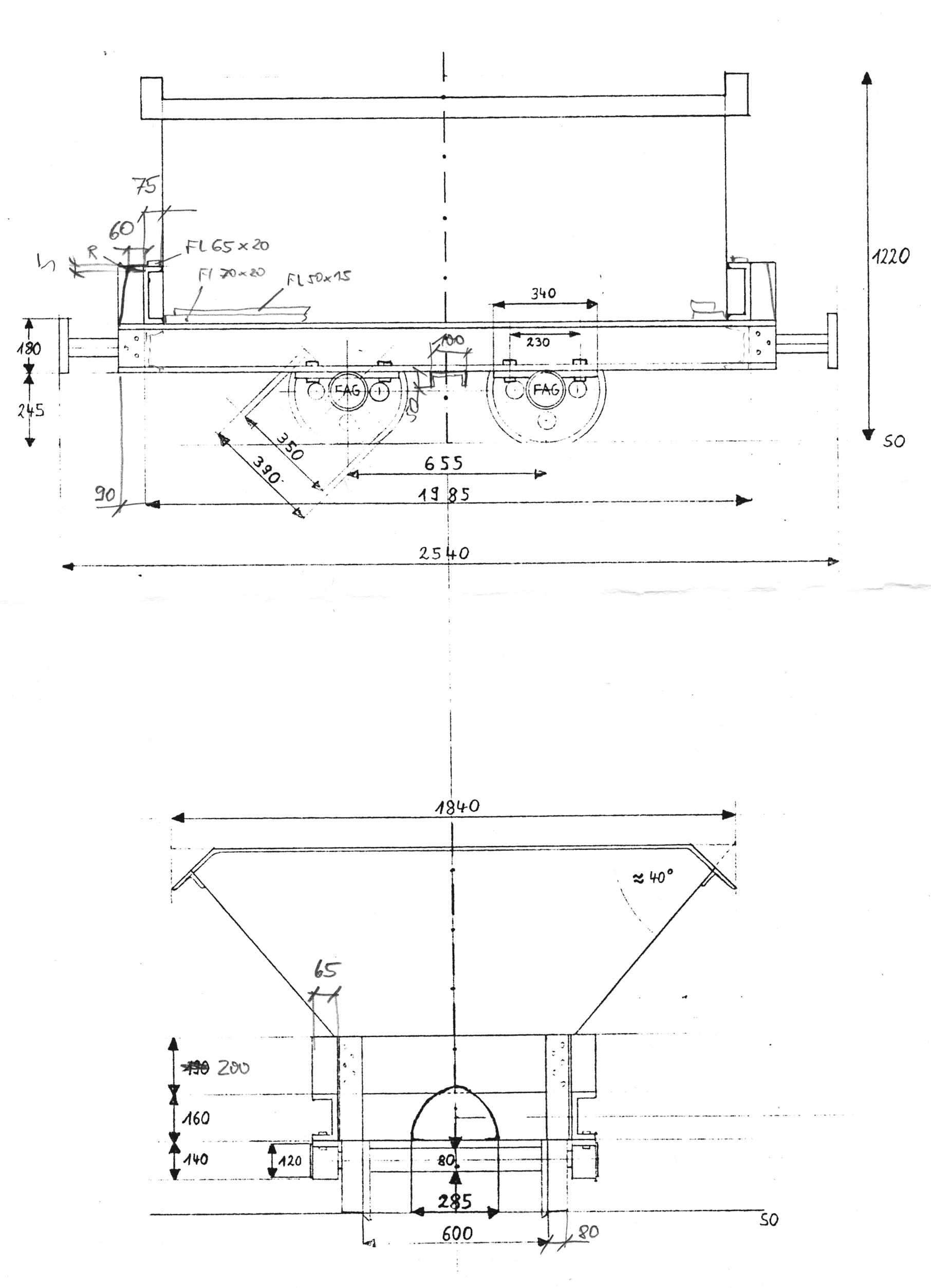
Während nun klar ist, daß zumindest zwei Deutz-Dieselloks OMZ117 der Wunstorfer Steinbruchbahn überlebt haben (eine davon bei den Feldbahnern in Oekoven), möchte ich die Aufmerksamkeit auf die in Wunstorf verwendeten Kipploren lenken. Mein Feldbahnkollege Volker Preine aus Hannover hat 1986 die an der Mergelgrube Wunstorf noch abgestellten Loren (welche von mir verschmäht wurden) glücklicherweise fotografiert und ausgemessen. Diese Bilder und auch das entsprechende Aufmaß möchte ich hiermit veröffentlichen.

Die Konstruktion der Loren taucht in keiner DIN-Norm auf, ich weiß auch nicht, wer der Hersteller war. Für die Modellbauer sind die Kipploren aber, wie ich meine, sehr interessant, da die Lorenrahmen keinerlei gebogene Teile aufweisen: alles ist aus geraden Profilen zusammengenietet oder geschweißt und sieht auch noch recht gut aus. Die Muldenfeststellung erfolgte recht altertümlich durch sog. Schlemper, das sind Laschen aus Flacheisen, die über einen Dorn an der Mulde gesteckt werden und mit einem Splint gesichert werden. Am Rahmen sind zum Teil noch die Führungsrollen sichtbar, die die Lore auf der Kettenbahnstrecke seitlich und nach oben führten.

Leider habe ich keine Zeit, eine neue CAD-Version der Zeichnung anzufertigen, ich hoffe, dass es auch so hilfreich ist. Einige Abmessungen von Profilen sind handschriftlich nachgetragen.

Bild 1: Gesamtansicht Bild 2: Lorenfahrgestell Bild 3: Seitenansicht Bild 4: Gesamtansicht Bild 5: Gesamtansicht Bild 6: Lorenzeichnung


zum Seitenanfang

zur Feldbahn-Übersicht